PRENAJATÝ - 3 izbový byt v širšom centre - Zariadený, VOĽNÝ k 1.8.

prenájom
3-izbový byt
Prešov
úplne prerobený
DOHODOU
 77

Údaje nehnuteľnosti

Druh ponuky:
prenájom
Druh nehnuteľnosti:
3-izbový byt
Mesto:
Prešov
Stav nehnuteľnosti:
úplne prerobený
Úžitková plocha:
77

Popis nehnuteľnosti

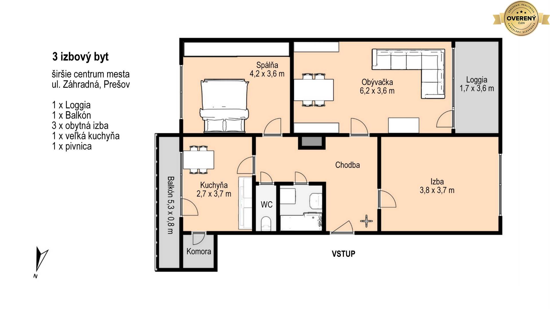
Realitné centrum PROFI REALITY SABOL vám exkluzívne ponúka kompletne ZARIADENÝ, KOMPLETNE REKONŠTRUOVANÝ, TEHLOVÝ, priestranný, dispozične zaujímavý, slnečný 3 izbový byt s LOGGIOU a BALKÓNOM a nádherným výhľadom v širšom centre Prešova, na ulici Záhradnej. K dispozícii od 1.8.2024.

Lokalita:
Byt sa nachádza v širšom centre mesta, na kľudnom mieste s nádherným, širokým výhľadom na okolie. V blízkosti bytu sa nachádza kompletná občianska vybavenosť pre túto lokalitu typická a veľa ďalších možností pre využitie voľného času. Parkovisko priamo za bytovým domom s možnosťou rezidenčného parkovania Bytový dom je čistý, udržiavaný, susedia bezproblémoví.

Popis bytu:
3 izbový byt o veľkorysej rozlohe 77 m² (+ 6 m² LOGGIA + 4 m² balkón) sa nachádza v tehlovom bytovom dome na 3/3 poschodí. Byt pozostáva z priestrannej vstupnej chodby, 3 veľkorysých izieb, kuchyne so vstupom na balkón, kúpeľne a samostatného WC, komory a veľkej loggie so vstupom z obývačky. Predmetom nájmu je aj pivnica v prízemí bytového domu o rozlohe 6 m². Byt má samostatné, vlastné kúrenie.

Stav a rozsah rekonštrukcie:
Byt je po kompletnej, kvalitnej rekonštrukcii s využitím podhľadov s bodovými svetlami, kvalitnými drevenými podlahami, dverami a nábytkom. Ponúkame ho kompletne zariadený kvalitným nábytkom z masívu. Tzn. nábytok, vstavané skrine, práčka, zariadená kuchyňa, chladnička, umývačka riadu, postele, gauč, jednoducho stačí si doniesť osobné veci a môžete okamžite bývať. Do bytu je zavedený optický internet, poskytovateľa internetu si zabezpečí nájomník podľa vlastného výberu.

Výhody ponuky:
- Sťahovanie bez investícií
- Výborná poloha
- krásny relaxačný výhľad
- kvalitná infraštruktúra a vybavenosť

Cena nájomného a platba:
- Ceny sú uvedené vrátane prenájmu bytu, zariadenia a energií
- DOHODOU,-€ / mesiac do 4 osôb, ďalšia osoba + 20,-€ / mesiac
- 1 mesačné nájomné + 2 mesačný depozit vopred je podmienkou. Prosíme záujemcov, ktorí nevedia splniť túto podmienku, aby nás nekontaktovali.

Seriózny vlastník má záujem o seriózneho dlhodobého nájomníka. Cena zahŕňa kompletné realitné a právne služby od prvého kontaktu po podpis nájomnej zmluvy. PROFI REALITY SABOL ... meníme sny na realitu ...

ID: SV16PRSBNEx

Kontakt na predajcu

Senior Realitný maklér, manažér | Prešov, Košice a okolie

Vladimír Sabol

Zobraziť kontaktný formulár Zobraziť profil
KONTAKTNÝ FORMULÁR

V prípade akýchkoľvek požiadaviek nás neváhajte kontaktovať

GDPR
cross