PREDANÝ - 1 izbový byt, 41 m² s možnosťou prerobenia na 2 izbový
Údaje nehnuteľnosti
Popis nehnuteľnosti
PREDANÝ
Hľadáte CENOVO DOSTUPNÉ BÝVANIE s možnosťou OKAMŽITÉHO NASŤAHOVANIA?
Ste rodič, dôchodca, študent, pracujúci alebo zatiaľ slobodný človek, či investor? Čítajte ďalej ... toto je pre Vás.
Realitné centrum PROFI REALITY SABOL vám EXKLUZÍVNE ponúka na PREDAJ 1 izbový byt vo veľmi zachovalom, pôvodnom stave na ulici Ďumbierskej v Prešove.
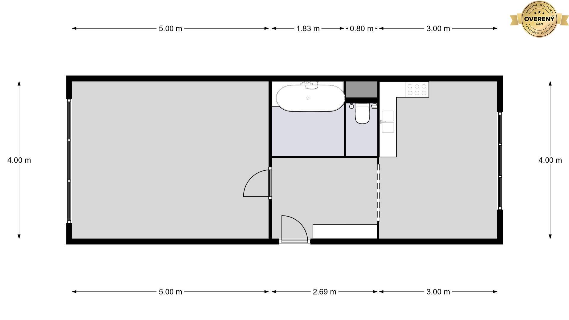
Popis bytu:
• 1 izbový byt o rozlohe 41 m² je vo veľmi udržiavanom a zachovalom pôvodnom stave s už plastovými oknami, zánovnou kuchynskou linkou a po hygienickom nátere je možné sa rovno nasťahovať alebo byt prenajať.
• Nachádza sa na 5/8 p. s výťahom, k bytu patrí pivnica a spoločné priestory. Na chodbe len 1 sused.
• Byt pozostáva zo vstupnej, presvetlenej predsiene, 1 veľkej, obytnej izby vľavo, 1 kuchyne vpravo a kúpeľňou v strede so samostatným WC. Nemá balkón.
• Tento typ bytu je možné prerobiť na 2 izbový (kuchyňu transformovať na spálňu a kuch. linku umiestniť v rohu obývacej miestnosti)
• Orientácia bytu je východ (obývačka), západ (kuchyňa), jadro je umakartové.
• Aktuálne mesačné náklady predstavujú 110,-€ (Bytové družstvo) + elektrina a plyn podľa spotreby.
Lokalita:
Byt sa nachádza v poslednom rade bytových domov, za ním už len výhľad z obývačky na zeleň, rodinné domy, detské ihriská. Samozrejmosťou je kvalitná, komfortná a kompletná občianska vybavenosť tvorená škôlkami, školami, obchodmi a službami. Okolie bytového domu i dom samotný sú pekne udržiavané a obývané dobrými susedmi.
Byt je vhodný pre ...
Nízke náklady, lokalita, jej vybavenosť, dispozícia bytu a možnosť prerobenia na 2 izbový byt robia túto nehnuteľnosť vhodnou pre širokú škálu záujemcov ... dôchodcov, rodičov, študentov, menšie rodinky, či začínajúce páriky alebo investorov s možnosť aj okamžitého prenájmu po minimálnej vstupnej investícii.
Nehnuteľnosť je v OV (osobnom vlastníctve) bez tiarch. Náklady na bývanie predstavujú 110€ + energie / 2 osoby. Energetický certifikát B. Internet - OPTIKA 300/30 Mbit/s. Správca – Spravbytkomfort. Voľný takmer OKAMŽITE po úhrade kúpnej ceny.
Termíny obhliadok: podľa dohody
Platba: Kúpu bytu je možné financovať z vlastných zdrojov i úverom, ktorý Vám bezplatne vybavíme priamo u nás
Výhody ponuky:
• cenová dostupnosť
• takmer žiadny sused
• OV - osobné vlastníctvo
• kvalitná infraštruktúra a vybavenosť
• vysoká likvidita
Cena, zahŕňa kompletné realitné a právne služby od prvého kontaktu po list vlastníctva s Vašim menom, zabezpečenie financovania a poistenia kupovanej nehnuteľnosti.
PROFI REALITY SABOL ... meníme sny na realitu ...
ID: SV60PRSBEx