PREDANÉ - 1,5-izbový byt 40 m² + loggia 6 m² v Moldave n/B

predaj
2-izbový byt
Moldava nad Bodvou
čiastočne prerobený
DOHODOU
 40

Údaje nehnuteľnosti

Druh ponuky:
predaj
Druh nehnuteľnosti:
2-izbový byt
Mesto:
Moldava nad Bodvou
Stav nehnuteľnosti:
čiastočne prerobený
Úžitková plocha:
40

Popis nehnuteľnosti

PREDANÉ - Hľadáte miesto, ktoré môžete nazvať domovom? Miesto, kde sa spája pohodlie, útulnosť a výhodná poloha? Predstavujeme Vám tento krásny 1,5-izbový byt, ktorý čaká na svojho nového majiteľa.

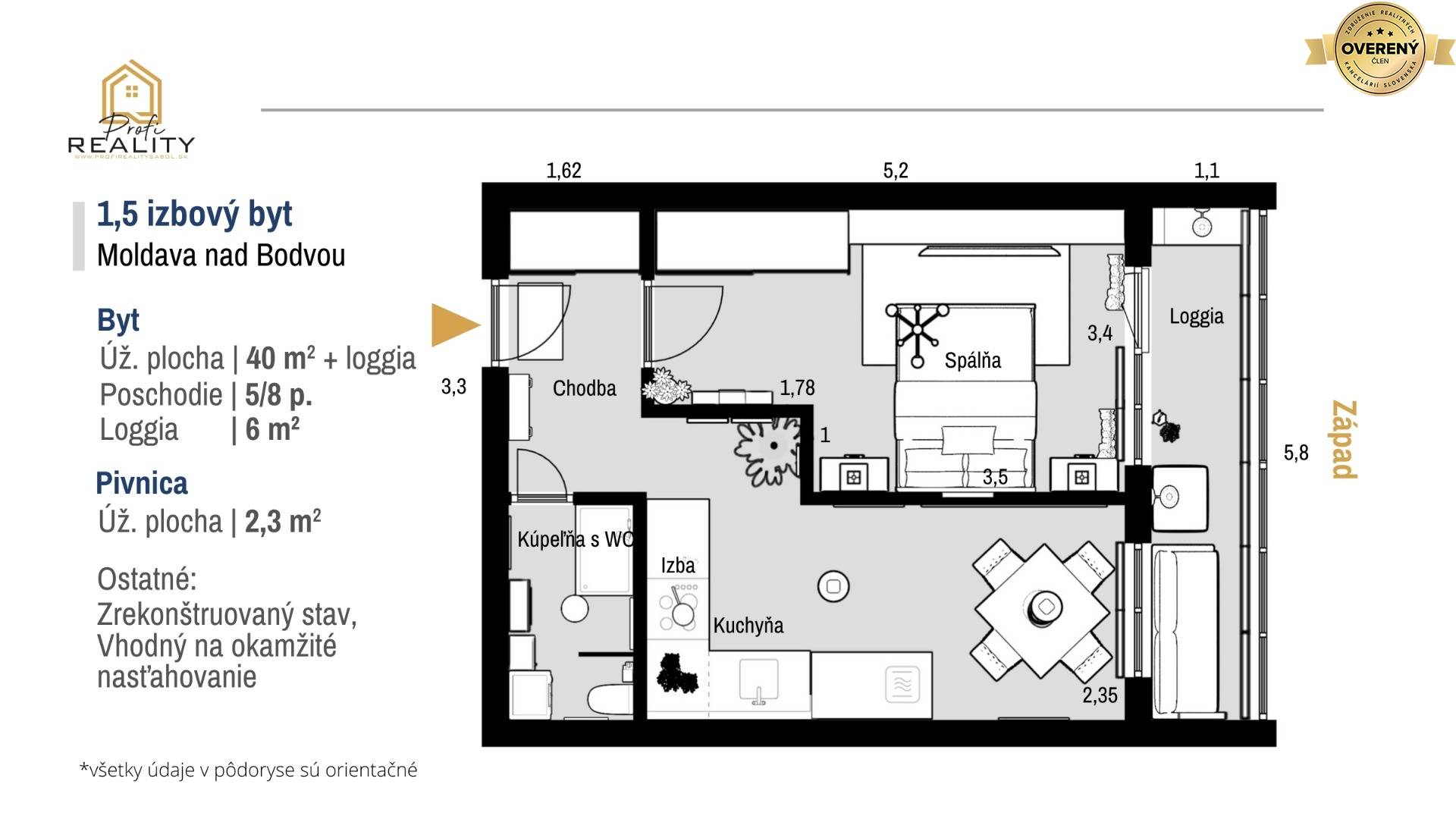
PROFI REALITY SABOL exkluzívne ponúka na predaj 1,5 izbový byt s rozlohou 40 m² plus pivnica 2,3 m² a loggia 6 m² v Moldave nad Bodvou.
Tiché prostredie, milí susedia a občianska vybavenosť sú výborným benefitom tohto bytu.

Z dôvodu obmedzenia množstva textu či počtu fotografii inzertnými portálmi si kompletný inzerát môžete pozrieť priamo na našom webe tu: https://shorturl.at/4XopE

Prečo si vybrať práve tento byt?
Je to miesto, kde môžete začať nový život, či už hľadáte svoj prvý vlastný byt, investičnú príležitosť, alebo príjemný priestor pre seba a svojich blízkych.
Loggia, kde si v lete vychutnáte príjemné rána. Tiché prostredie, kde Vás nebude rušiť mestský hluk. A k tomu všetkému výhodná cena a občianska vybavenosť, ktorá robí tento byt skutočne atraktívnym.

O byte:
Tento 1,5-izbový byt s úžitkovou plochou 40 m² + s pivnicou 2,3 m² a krásnou loggiou o rozlohe 6 m² je ideálnou voľbou pre jednotlivcov, páry či ako investícia na prenájom.
Byt sa nachádza na 5. poschodí z 8 v zateplenom bytovom dome s výťahom a bezbariérovým vstupom, ktorý zaručuje pohodlie pre všetkých obyvateľov.
Byt prešiel čiastočnou rekonštrukciou, ktorá zahŕňa: nové plávajúce podlahy, vymenené plastové okná, upravené steny, kompletne prerobenú kúpeľňu s WC, nové bezpečnostné dvere.
Priestor je efektívne rozdelený: priestranná spálňa, jedáleň s kuchyňou, kúpeľňa s WC. Loggia s orientáciou na západ poskytuje príjemné miesto na rannú kávu či večerný oddych. Ideálne pre tých, ktorí chcú spojiť mestský život s pokojom a pohodou.

Lokalita:
Tento byt sa nachádza na tichej a pokojnej ulici Severná v Moldave nad Bodvou, kde nájdete dokonalý oddych po náročnom dni. A to najlepšie? Všetko potrebné máte doslova po ruke!
Obchody, lekáreň, zdravotnícke zariadenie, škola a škôlka, detské ihriská, športové ihriská, kaderníctvo či fitnescentrum – všetko je v pešej dostupnosti.
Vzdialenosť od Košíc iba 22 min.
Ak hľadáte aktivity na voľný čas, napr. prechádzky, cykloturistika,... - príroda v okolí Moldavy Vás nesklame.

Hlavné benefity:
- Zateplený bytový dom šetrí na energiách.
- Nové vchodové dvere do bytového domu zaručujú bezpečnosť + nové bezpečnostné dvere v byte.
- Nízke mesačné náklady = 146€/2os.
- Výborná občianska vybavenosť.
- Byt je bez tiarch a je v osobnom vlastníctve.
- Bezproblémoví susedia, tiché prostredie.

Bonus:
Pre lepšiu predstavu si môžete pozrieť vizualizáciu, ako môže váš nový domov vyzerať.
Vizualizácia vám dodá inšpiráciu moderného zariadenia a využitia priestoru.

Zavolajte ešte dnes a dohodnite si obhliadku! Tento byt čaká možno práve na Vás, aby ste v ňom začali novú kapitolu svojho života.

Cena zahŕňa kompletné realitné a právne služby od prvého kontaktu po list vlastníctva s Vašim menom, zabezpečenie financovania a poistenia kupovanej nehnuteľnosti. V prípade rýchleho jednania je možná dohoda na cene. PROFI REALITY SABOL ... meníme sny na reality...
FD3BEx

Kontakt na predajcu

KONTAKTNÝ FORMULÁR

V prípade akýchkoľvek požiadaviek nás neváhajte kontaktovať

GDPR
cross